TERRENO 360m² || BAIRRO FRARON || PATO BRANCO - PR
TERRENO COM 450 m² || BAIRRO PINHEIRINHO || PATO BRANCO - PR
TERRENO COM 292 m² || BAIRRO FRARON || PATO BRANCO - PR
CASA EM LOTE INDIVIDUAL || BAIRRO ALVORADA || PATO BRANCO - PR
SOBRADO ALTO PADRÃO || MENINO DEUS || PATO BRANCO - PR
TERRENO 396,00 m² || LOTEAMENTO DOM CARLOS MENINO DEUS || PATO BRANCO - PR
CASA 02 QUARTOS || BAIRRO FRARON || PATO BRANCO - PR
SOBRADO DE ESQUINA || BAIRRO FRARON || PATO BRANCO - PR
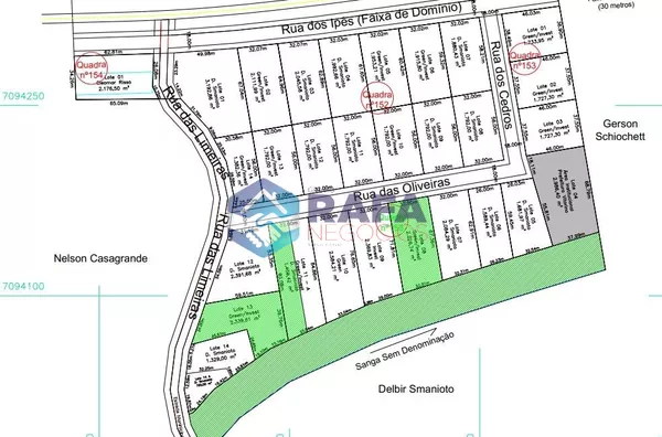
TERRENO INDUSTRIAL || LOTEAMENTO SMANIOTTO || VITORINO - PR
CASA 02 PAVIMENTOS || BAIRRO AMADORI || PATO BRANCO - PR
DUPLEX ALTO PADRÃO || EDIFÍCIO CELESTINA ||CENTRO|| PATO BRANCO-PR
APARTAMENTO ALTO PADRÃO || EDIFÍCIO CELESTINA ||CENTRO|| PATO BRANCO-PR
TERRENO || PARZIANELLO || PATO BRANCO - PR
CASA AMPLA || BAIRRO MENINO DEUS || PATO BRANCO - PR
TERRENO DE ESQUINA || BAIRRO FRARON || PATO BRANCO - PR
CHÁCARA COM 2,5 ALQUEIRES || MARIÓPOLIS - PR
TERRENO || BAIRRO SÃO FRANCISCO || PATO BRANCO - PR
APARTAMENTO ED DONA CESIRA || BAIRRO BRASILIA || PATO BRANCO - PR
TERRENO COMERCIAL || LOTEAMENTO DAMIN || SÃO MIGUEL DO IGUAÇU - PR
TERRENO 615M² || BAIRRO SÃO LUIZ || PATO BRANCO - PR
TERRENO FACE NORTE || LOTEAMENTO VÔ NINO || PATO BRANCO - PR
Faça-nos uma visita